Blown 7i84
- tommylight
-
- Away
- Moderator
-
Less
More
- Posts: 21579
- Thank you received: 7367
20 Mar 2025 21:08 #324378
by tommylight
Replied by tommylight on topic Blown 7i84
If that is actually the line powering the Mesa boards, I have made an artistic representation of the issue, see attached:
As mentioned many times here on the forum by several members, do NOT cut on/off the DC side of power to Mesa boards... and stepper/servo drives.
I will leave it to PCW to explain why as i might make a mess.
As mentioned many times here on the forum by several members, do NOT cut on/off the DC side of power to Mesa boards... and stepper/servo drives.
I will leave it to PCW to explain why as i might make a mess.
Attachments:
Please Log in or Create an account to join the conversation.
- tommylight
-
- Away
- Moderator
-
Less
More
- Posts: 21579
- Thank you received: 7367
20 Mar 2025 21:41 #324380
by tommylight
Replied by tommylight on topic Blown 7i84
Found one instance:
forum.linuxcnc.org/27-driver-boards/5339...-over-current#306578
Also, is the 6V1 a regulated or unregulated rectifier?
What is the voltage on that rail when everything is powered on and when everything is powered off?
If you have a scope, do a trace of that rail while flipping the some big relays on/off, see how much they induce to the DC side.
forum.linuxcnc.org/27-driver-boards/5339...-over-current#306578
Also, is the 6V1 a regulated or unregulated rectifier?
What is the voltage on that rail when everything is powered on and when everything is powered off?
If you have a scope, do a trace of that rail while flipping the some big relays on/off, see how much they induce to the DC side.
Please Log in or Create an account to join the conversation.
- Simi02
- Offline
- New Member
-
Less
More
- Posts: 3
- Thank you received: 0
20 Mar 2025 22:41 #324384
by Simi02
Replied by Simi02 on topic Blown 7i84
Hey, since I'm retrofitting my MH400e right now I'm "glad" that this problem was found. I thought about how I will resolve this. Since I want to keep my maho as original as possible, I'm thinking about ether a switch bord between the outputs of the mesa card and the relay board or to just lock it out in the software and to add a new 24v dc power supply. Any thoughts about this?
@RotarySMP could I maybe ask you a few questions about your retrofit?
@RotarySMP could I maybe ask you a few questions about your retrofit?
Please Log in or Create an account to join the conversation.
- tommylight
-
- Away
- Moderator
-
Less
More
- Posts: 21579
- Thank you received: 7367
21 Mar 2025 00:03 #324389
by tommylight
No switch board,
No lock, whatever that means,
Yes, you can replace the existing power supply for good quality power supply (Delta preferably or Mean Well), just mind the current required.
-additional info just in case:
But, if you want to add another good quality power supply just for the Mesa and also leave the old power supply (makes things easier sometimes, not always), that absolutely requires having the same potential as the rest of the IO, usually means only wiring 0V for this power supply to 0V of the existing power supply, and checking if the machine has the 0V tied to ground/chassis and if not make sure the new power supply does not also, as some do and some do not have GND tied to 0V.
Replied by tommylight on topic Blown 7i84
Yes, plenty:I'm thinking about ether a switch bord between the outputs of the mesa card and the relay board or to just lock it out in the software and to add a new 24v dc power supply. Any thoughts about this?
No switch board,
No lock, whatever that means,
Yes, you can replace the existing power supply for good quality power supply (Delta preferably or Mean Well), just mind the current required.
-additional info just in case:
But, if you want to add another good quality power supply just for the Mesa and also leave the old power supply (makes things easier sometimes, not always), that absolutely requires having the same potential as the rest of the IO, usually means only wiring 0V for this power supply to 0V of the existing power supply, and checking if the machine has the 0V tied to ground/chassis and if not make sure the new power supply does not also, as some do and some do not have GND tied to 0V.
Please Log in or Create an account to join the conversation.
- Benb
-
- Offline
- Elite Member
-
Less
More
- Posts: 183
- Thank you received: 60
21 Mar 2025 02:20 #324395
by Benb
Replied by Benb on topic Blown 7i84
Right now, the 7k1-131 relay contact is disconnecting the 24VDC supply to mesa 7i84 board which is no, no as indicated by Tommylight. I can suggest you jumper 7k1=131 contact and replace the single pole relay 7k1-131 with a 3-pole relay to disconnect the 3 phase AC side of 6V1 power rectifier. let me know, if this info does not make sense, I can draw a diagiagram.
The following user(s) said Thank You: tommylight
Please Log in or Create an account to join the conversation.
- RotarySMP
-
Topic Author
- Offline
- Platinum Member
-
Less
More
- Posts: 1627
- Thank you received: 595
21 Mar 2025 05:54 #324398
by RotarySMP
Replied by RotarySMP on topic Blown 7i84
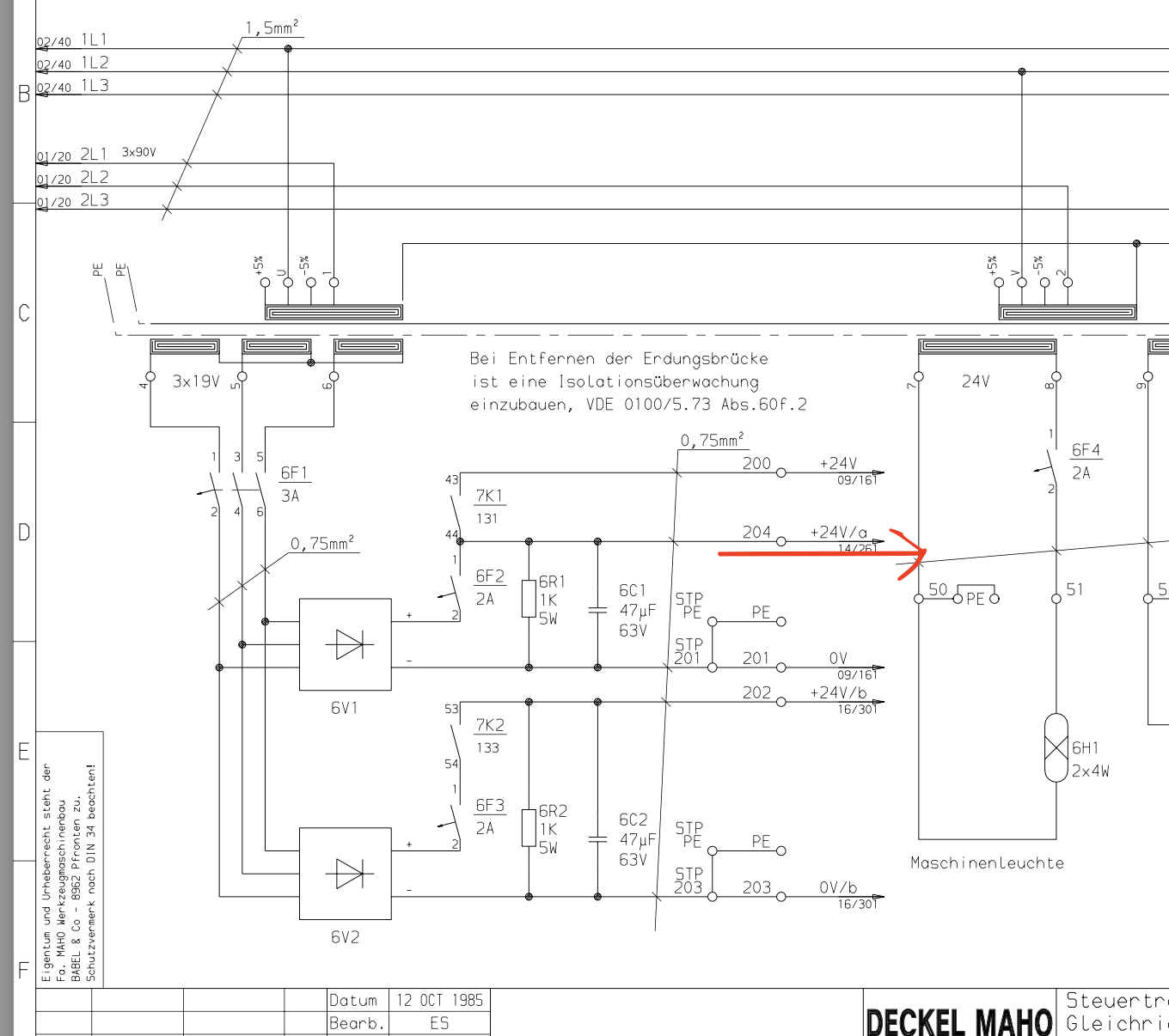
I created confusion there. The 784 is not powered by the 200 rail (which is switched on and off with Machine start / Estop), it is wired to the 204 rail, which is on constantly when the machine main switch is on.
Please Log in or Create an account to join the conversation.
- RotarySMP
-
Topic Author
- Offline
- Platinum Member
-
Less
More
- Posts: 1627
- Thank you received: 595
21 Mar 2025 19:27 #324445
by RotarySMP
Replied by RotarySMP on topic Blown 7i84
This is the correct wiring... I always had it wired like that, so the 7i77 and 7i84 are always powered.
When I flip the mains switch, I have 24.26V on rail 204 to ground (201).
I cut off the legs and then desoldered the remaining leg bits, removing the both NCV7608 chips. When I plug the 7i84 into the 7i77 and boot up (no field power connected) , I get a solid yellow LED on CR8, but that is all. None of the other LED's show any activity. LinuxCNC fails to load with a 7i84 pin unknown error.
Tommy, good idea to scope that 24V rail while switching some of the bigger relays, thanks. Since LinuxCNC faults out, I will need to work out how I can fake machine on and latched, to get the 200 rail powered as well, so be able to manual operate those relays with their test buttons.
When I flip the mains switch, I have 24.26V on rail 204 to ground (201).
I cut off the legs and then desoldered the remaining leg bits, removing the both NCV7608 chips. When I plug the 7i84 into the 7i77 and boot up (no field power connected) , I get a solid yellow LED on CR8, but that is all. None of the other LED's show any activity. LinuxCNC fails to load with a 7i84 pin unknown error.
Tommy, good idea to scope that 24V rail while switching some of the bigger relays, thanks. Since LinuxCNC faults out, I will need to work out how I can fake machine on and latched, to get the 200 rail powered as well, so be able to manual operate those relays with their test buttons.
Attachments:
The following user(s) said Thank You: tommylight
Please Log in or Create an account to join the conversation.
- tommylight
-
- Away
- Moderator
-
Less
More
- Posts: 21579
- Thank you received: 7367
21 Mar 2025 21:10 #324457
by tommylight
Replied by tommylight on topic Blown 7i84
Is 6F2 a thermal resetable fuse?
Did it trip at any time during the "incident"?
Did it trip at any time during the "incident"?
The following user(s) said Thank You: RotarySMP
Please Log in or Create an account to join the conversation.
- RotarySMP
-
Topic Author
- Offline
- Platinum Member
-
Less
More
- Posts: 1627
- Thank you received: 595
22 Mar 2025 06:26 - 22 Mar 2025 06:49 #324521
by RotarySMP
Replied by RotarySMP on topic Blown 7i84
HI Tommy,
Yes it did. The week before I had a loose screw rattling around in in my pendant cause a short, which tripped that fuse. I removed the screw and reset the fuse.
Hi Peter,
With only CR8 lighting up (steady) with this 7i84 plugged into its SS cable, and field power disconnect, is this board worth soldering new output IC's onto, or is itpining for the fiords dead?
Cheers,
Mark
Yes it did. The week before I had a loose screw rattling around in in my pendant cause a short, which tripped that fuse. I removed the screw and reset the fuse.
Hi Peter,
With only CR8 lighting up (steady) with this 7i84 plugged into its SS cable, and field power disconnect, is this board worth soldering new output IC's onto, or is it
Cheers,
Mark
Last edit: 22 Mar 2025 06:49 by RotarySMP.
Please Log in or Create an account to join the conversation.
- RotarySMP
-
Topic Author
- Offline
- Platinum Member
-
Less
More
- Posts: 1627
- Thank you received: 595
22 Mar 2025 16:22 #324560
by RotarySMP
Replied by RotarySMP on topic Blown 7i84
Okay, now I am getting inconsistent behavior. Yesterday, I switched on the machine, the PC booted, and I was able to check the 7i84 connected with it's 7i77, and also check the voltage of the 24V rail (204).
Today, I wanted to repeat that, but the PC gets no power. I receives 110VAC via pins 150 /151 from the same 3Ph transformer (6T1) which also powers the 24V DC rails. The 110VAC secondary is protected by fuse 6F6 , which has not tripped.
The primary of the that transformer is only protected by that main fuse/breaker Q2. I measured the output of Q2. Between L1/L2--> 400V , L1/L3 -->240V, L2/L3 --> 200V. WTF?
Shut down again, tripped the switch on Q2 to remove all loads, and measured on the input side of it. Same result... Between L1/L2--> 400V , L1/L3 -->240V, L2/L3 --> 200V.
Shut down again, pulled the socket from the wall and measured. The supply is normal. 400V phase to phase between all three. There is no isolation transformer. None of the fuses or breakers has tripped.
I am kind of confused what could be pulling down the voltage on those lines, unless I have an open circuit on one and the multimeter is just picking up tiny current induced into the lines like an antenna?
Today, I wanted to repeat that, but the PC gets no power. I receives 110VAC via pins 150 /151 from the same 3Ph transformer (6T1) which also powers the 24V DC rails. The 110VAC secondary is protected by fuse 6F6 , which has not tripped.
The primary of the that transformer is only protected by that main fuse/breaker Q2. I measured the output of Q2. Between L1/L2--> 400V , L1/L3 -->240V, L2/L3 --> 200V. WTF?
Shut down again, tripped the switch on Q2 to remove all loads, and measured on the input side of it. Same result... Between L1/L2--> 400V , L1/L3 -->240V, L2/L3 --> 200V.
Shut down again, pulled the socket from the wall and measured. The supply is normal. 400V phase to phase between all three. There is no isolation transformer. None of the fuses or breakers has tripped.
I am kind of confused what could be pulling down the voltage on those lines, unless I have an open circuit on one and the multimeter is just picking up tiny current induced into the lines like an antenna?
Attachments:
Please Log in or Create an account to join the conversation.
Moderators: PCW, jmelson
Time to create page: 0.224 seconds