Hurco BMC/M BMC 40/m
- Clive S
- Offline
- Platinum Member
-
Less
More
- Posts: 2204
- Thank you received: 483
25 Jan 2021 14:58 - 13 Feb 2021 19:19 #196530
by Clive S
Hurco BMC/M BMC 40/m was created by Clive S
I am looking for a manual for a Huco BMC 40/M with Yaskawi drives
Are the drives likely be +- 10v or +-12V
Possible retrofit !!
Thanks
Are the drives likely be +- 10v or +-12V
Possible retrofit !!
Thanks
Last edit: 13 Feb 2021 19:19 by Clive S.
Please Log in or Create an account to join the conversation.
- tommylight
-
- Away
- Moderator
-
Less
More
- Posts: 21421
- Thank you received: 7303
25 Jan 2021 15:40 #196532
by tommylight
Replied by tommylight on topic Huco BMC/M
BMC20P has +-10V drives with encoder outputs, motors have proprietary encoders with 3 phases.
7i77 works perfectly if the drives are OK, they do not like to be left unused for long periods of time.
Spindle drive has Orient and Oriented I/O, +-10V with encoder outputs.
Used a 7i92M as it is plugged to the 7i77 and a network cable goes to the control panel where the PC resides.
Do not remove the tool changer board, it will be much easier to use the changer.
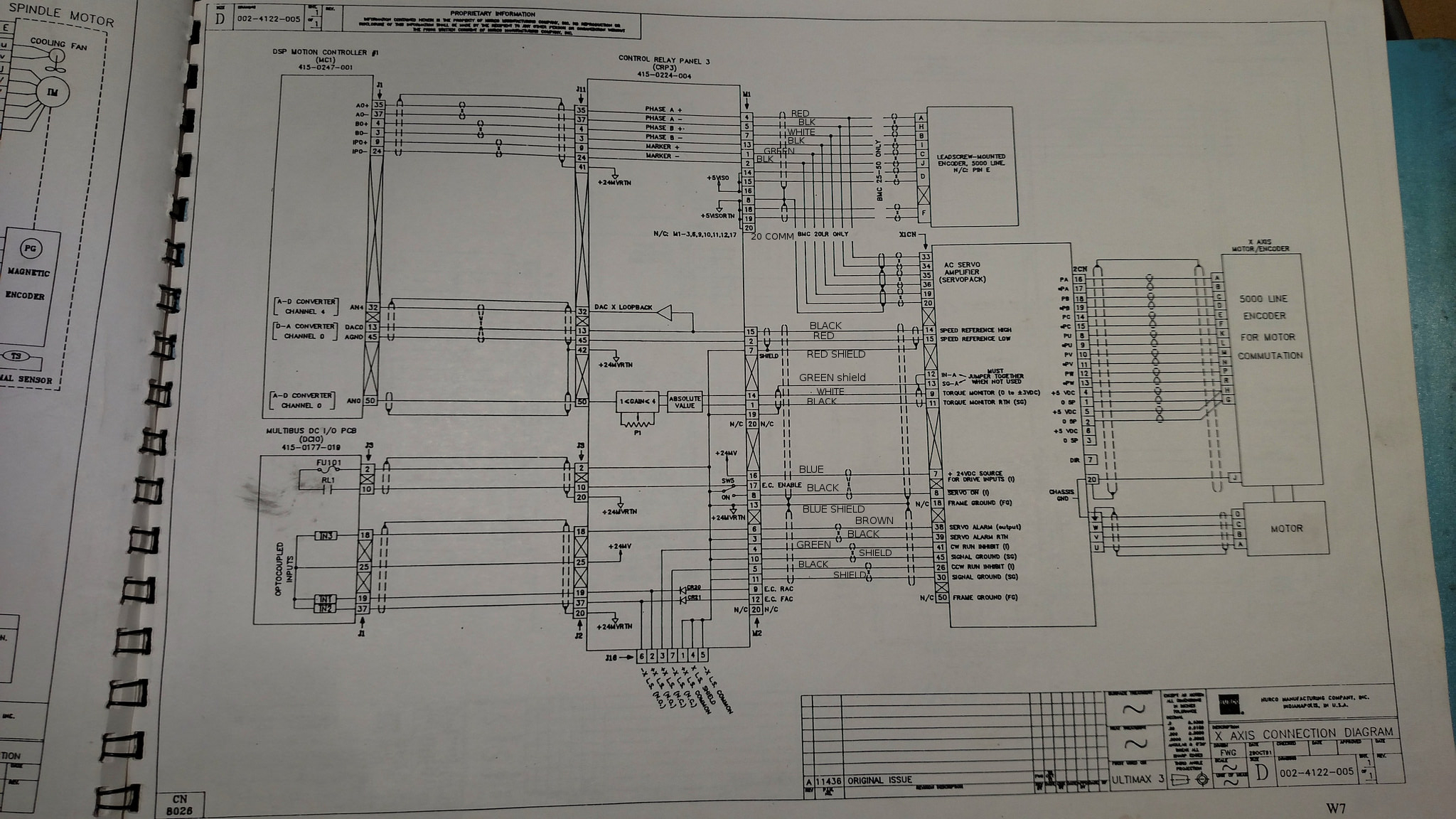
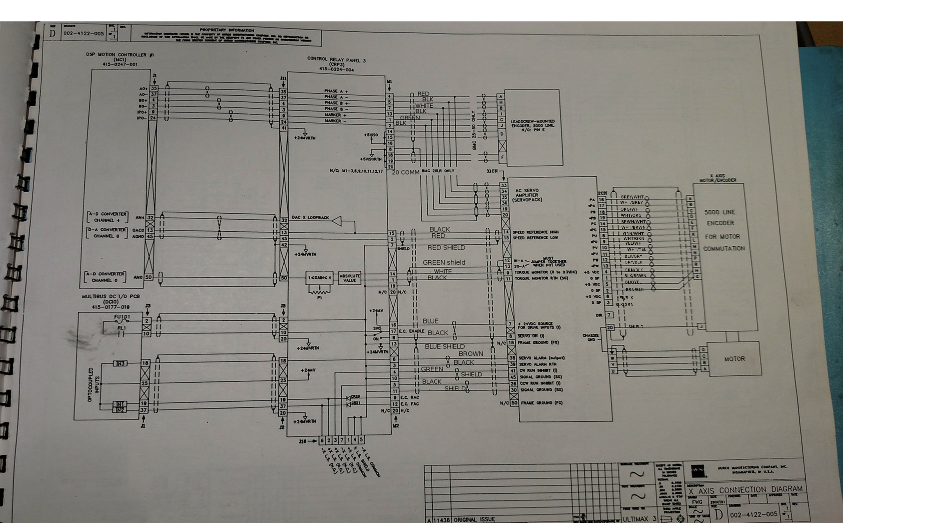
Attached are the colours of the wiring i added when i was dealing with it.
This has also the encoder wiring colours, in case you might need them, but not much use, the encoders can not be used directly with a 7i77.
7i77 works perfectly if the drives are OK, they do not like to be left unused for long periods of time.
Spindle drive has Orient and Oriented I/O, +-10V with encoder outputs.
Used a 7i92M as it is plugged to the 7i77 and a network cable goes to the control panel where the PC resides.
Do not remove the tool changer board, it will be much easier to use the changer.
Attached are the colours of the wiring i added when i was dealing with it.
This has also the encoder wiring colours, in case you might need them, but not much use, the encoders can not be used directly with a 7i77.
Attachments:
The following user(s) said Thank You: Clive S
Please Log in or Create an account to join the conversation.
- Clive S
- Offline
- Platinum Member
-
Less
More
- Posts: 2204
- Thank you received: 483
25 Jan 2021 15:58 - 25 Jan 2021 16:11 #196533
by Clive S
Replied by Clive S on topic Huco BMC 40/M
Tom are those Yasawi drives with servo motors
Do you know it the BMC20P is similar to the BMC 40/M
I think the power supply is +12-12v
Do you know it the BMC20P is similar to the BMC 40/M
I think the power supply is +12-12v
Last edit: 25 Jan 2021 16:11 by Clive S. Reason: added text
Please Log in or Create an account to join the conversation.
- tommylight
-
- Away
- Moderator
-
Less
More
- Posts: 21421
- Thank you received: 7303
25 Jan 2021 21:32 #196561
by tommylight
Replied by tommylight on topic Huco BMC 40/M
Yes they are Yaskawa drives, and the schematic is from an Ultimax 3 control from a BMC30, but the important parts were the same in my case, so probably valid for your case also.
Power supply must be +-12V for 10V control due to drops on the regulators, but no worries about it, even with +-5V they will have enough speed to easily break things !
Just do not touch the drives, like that is an absolute, do not touch or tune or anything! If they are OK it will take about 5 minutes to have all the drives tuned in LinuxCNC, literally !
Power supply must be +-12V for 10V control due to drops on the regulators, but no worries about it, even with +-5V they will have enough speed to easily break things !
Just do not touch the drives, like that is an absolute, do not touch or tune or anything! If they are OK it will take about 5 minutes to have all the drives tuned in LinuxCNC, literally !
The following user(s) said Thank You: Clive S
Please Log in or Create an account to join the conversation.
Time to create page: 0.331 seconds